Bauleitplanung

Bebauungspläne

Bebauungsplan-Portal

als besonderen Service für alle Bürgerinnen und Bürger und alle, die in Reckendorf bauen möchten, haben wir die geltenden Bebauungspläne und die dazugehörigen textlichen Festsetzungen in unserem Bebauungsplan-Portal für Sie veröffentlicht. So können Sie selbst und rund um die Uhr nachsehen, welche Festsetzungen in Ihrem Bereich gelten.

Sie erreichen das Bebauungsplan-Portal unter nachfolgendem Link oder durch Klick auf das Bild

Bebauungsplan-Portal

Sie finden in dem Portal oben Links das Menü. Hier können Sie nach Stichworten suchen. Weiterhin können Sie im Luftbild des Portals einfach auf Ihr Grundstück klicken. Sie sehen dann, ob es einen Bebauungsplan für Ihr Grundstück gibt und welche Festsetzungen dort gelten. 

Bei Fragen zu den Bebauungsplänen und den Festsetzungen können Sie sich an unsere Bauverwaltung wenden, die entsprechenden Kontaktdaten finden Sie weiter unten auf dieser Seite. 

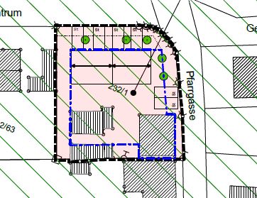
Bekanntmachung gemäß § 2 Abs. 1 des Baugesetzbuches (BauGB) über den Beschluss zur Aufstellung der 6. Änderung des Bebauungsplanes „Geracher Weg“ sowie zur Billigung des Vorentwurfs und der frühzeitigen Beteiligung der Öffentlichkeit gemäß § 3 Abs. 1 BauGB

 

Der Gemeinderat der Gemeinde Reckendorf hat in seiner öffentlichen Sitzung am 17. September 2025 die Aufstellung der 6. Änderung des Bebauungsplanes „Geracher Weg“ beschlossen. Der Geltungsbereich des Bebauungsplanes umfasst das Flurstück 232/1 der Gemarkung Reckendorf und ist folgendem ...mehr

Flächennutzungsplan

Für das gesamte Gemeindegebiet der Gemeinde Reckendorf gibt es einen Flächennutzungsplan. Der Flächennutzungsplan ist ein Instrument der vorbereitenden Bauleitplanung und entfaltet keine Außenwirkung für die Bürgerinnen und Bürger. Im Flächennutzungsplan ist für das ganze Gemeindegebiet die sich aus der beabsichtigten städtebaulichen Entwicklung ergebende Art der Bodennutzung nach den voraussehbaren Bedürfnissen der Gemeinde in den Grundzügen darzustellen. Es handelt sich somit um eine verwaltungsinterne Planung, die daher auch nicht pauschal veröffentlicht wird. 

Wenn Sie den Flächennutzungsplan einsehen oder einen Auszug daraus erhalten möchten, können Sie sich gerne an unsere Bauverwaltung wenden. 

Kriterienkatalog für die Bauplatzvergabe

Die Gemeinde Reckendorf hat einen Kriterienkatalog für die Vergabe von Bauplätzen aufgestellt. Die Kriterien werden bei der Erschließung von Baugebieten oder bei der Vergabe von sonstigen Baugrundstücken angewendet. Für Fragen zum Kriterienkatalog können Sie sich an die Mail-Adresse bauplatzvergabe@vg-baunach.de wenden. 

Bauverwaltung

Cookie-Einstellungen

Wir verwenden Cookies, um Ihnen ein optimales Webseiten-Erlebnis zu bieten. Dazu zählen Cookies, die für den Betrieb der Seite und für die Steuerung unserer kommerziellen Unternehmensziele notwendig sind, sowie solche, die lediglich zu anonymen Statistikzwecken, für Komforteinstellungen oder zur Anzeige personalisierter Inhalte genutzt werden. Sie können selbst entscheiden, welche Kategorien Sie zulassen möchten. Bitte beachten Sie, dass auf Basis Ihrer Einstellungen womöglich nicht mehr alle Funktionalitäten der Seite zur Verfügung stehen.
→ Weitere Informationen finden Sie in unserem Datenschutzhinweis.

Diese Seite verwendet Personalisierungs-Cookies. Um diese Seite betreten zu können, müssen Sie die Checkbox bei "Personalisierung" aktivieren.